Nouvelle recherche
Cette annonce m'intéresse
À LOUER - Local Professionnel Spacieux et Lumineux à GAILLON (27600)
Prix :
2 850,00 €
Loyer par mois, charges comprises.
Type de bien :
Local professionnel
Surface :
210,00m²
Localité :
Gaillon (27600) France
Référence :
MPGAILLON-27030
Description du bien
À LOUER - Local Professionnel Spacieux et Lumineux à GAILLON (27600)
Idéal pour bureaux, professions libérales, services, etc.
Situé dans un secteur dynamique de Gaillon, à proximité immédiate de l’espace aquatique et du golf, ce local professionnel bénéficie d’un emplacement stratégique avec excellente visibilité.
Dans un bâtiment récent (2019), nous vous proposons un espace de 210 m² environ, parfaitement adapté pour développer votre activité :
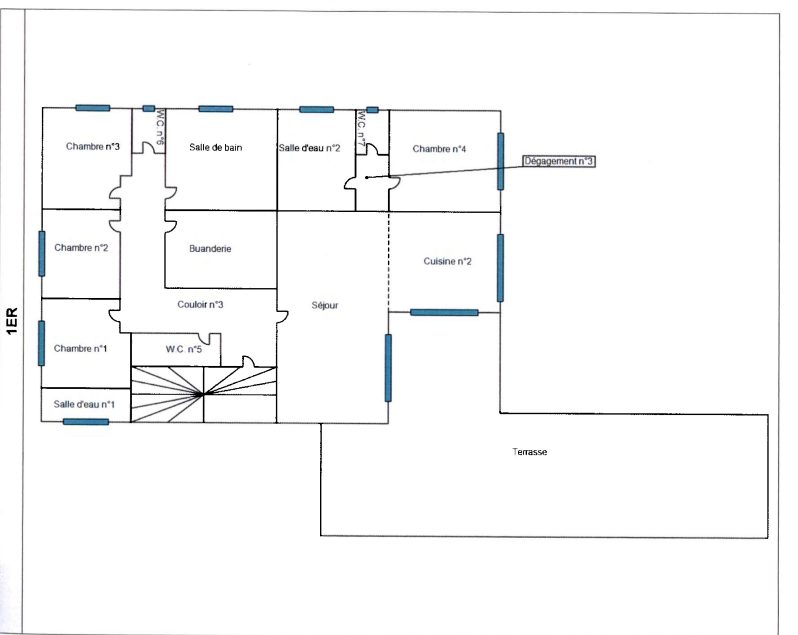
Composition du bien :
Garage d’environ 38 m², pouvant être transformé en bureau ou espace d'accueil.
A l’étage, 7 espaces modulables selon vos besoins (bureaux, open-space, salles de réunion, etc.)
Terrasse d’environ 136 m², idéale pour les pauses ou événements professionnels.
Le local est équipé d’une climatisation réversible.
Atouts supplémentaires :
Parking privé aérien et sécurisé avec plusieurs places disponibles.
Accès facile pour vos clients, patients ou collaborateurs.
Environnement professionnel attractif.
Loyer mensuel : 2 850 € HT et HC
Contactez-nous dès maintenant pour organiser une visite et découvrir le potentiel de ce local !
Dépôt de garantie 5 700 €. Classe énergie C, Classe climat A. Les informations sur les risques auxquels ce bien est exposé sont disponibles sur le site Géorisques : georisques.gouv.fr.
Diagnostic de performance énergétique
127
kWh EP/m².an
Émission de gaz à effet de serre
3
kg éqCO2/m².an
Montant des dépenses théoriques annuelles d’énergie
Coût annuel (min) : 5711.00 €
Coût annuel (max) : 5711.00 €
Année de référence : 2021
Caractéristiques
| Situation locative : |
loué |
Informations complémentaires
| Charges annuelles : |
0,00 € |
| Frais visite/dossier/bail locataire : |
0,00 € |
| Frais état des lieux locataire : |
0,00 € |
| Dépot de garantie: |
5 700,00 € |
Mandat
| Nom du mandataire : |
Carole COLLIGNON |
| Téléphone mandataire : |
0601787589 |
| E-mail mandataire : |
Veuillez utiliser le formulaire de contact ci-dessous ... |
| Négociateur : |
Carole COLLIGNON |