Actualités

Toutes les annonces

Espace client

Nouvelle recherche Cette annonce m'intéresse

A louer : Autre... - 210m² - Gaillon (27600)

Prix : 2 850,00 
Loyer par mois, hors charges.
Type de bien : Autre...
Surface : 210,00m²
Localité : Gaillon (27600)
Référence : MPGAILLON-27030

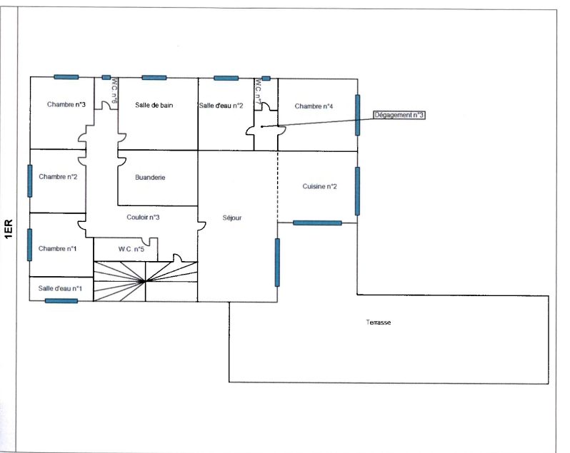
Description du bien

À LOUER – LOCAUX PROFESSIONNELS DIVISIBLES – Gaillon (27600)
Bureaux – Professions libérales – Services …

Dans un secteur dynamique et recherché de Gaillon, à proximité immédiate de l’espace aquatique et du golf, découvrez ce local professionnel récent (2019) offrant une excellente visibilité et un fort potentiel d’aménagement.
Surface totale d’environ 210 m² – DIVISIBLE selon vos besoins
Idéal pour une entreprise souhaitant s’installer seule ou pour plusieurs activités indépendantes.
Composition :
A l’étage, 7 espaces modulables selon vos besoins (bureaux, open-space, salles de réunion, etc.)
Terrasse d’environ 136 m², idéale pour les pauses ou événements professionnels.
Le local est équipé d’une climatisation réversible.

Atouts supplémentaires :
Locaux divisibles : surfaces adaptables selon projet
Parking privé aérien et sécurisé avec plusieurs places disponibles
Accès facile pour clientèle, patients et collaborateurs
Environnement professionnel attractif
Loyer mensuel : 2 850 € HT / HC
Conditions de division et de location partielle sur demande
Contactez-nous pour étudier votre projet et organiser une visite !

Caractéristiques

Situation locative : libre

Informations complémentaires

Charges annuelles : 0,00 €
Frais visite/dossier/bail locataire : 0,00 €
Frais état des lieux locataire : 0,00 €
Dépot de garantie: 5 700,00 €

Mandat

Téléphone mandataire : +33756278974
E-mail mandataire : Veuillez utiliser le formulaire de contact ci-dessous ...
Négociateur : Mathilde Prou

Cette annonce m'intéresse

Captcha
* Les champs suivis d'un astérisque sont obligatoires.

Conformément à la loi n°78-17 du 6 janvier 1978 modifiée relative à l'informatique, aux fichiers et aux libertés, et au règlement européen 2016/679, dit Règlement Général sur la Protection des Données (RGPD), vous disposez d'un droit d'accès, de rectification, de suppression des informations qui vous concernent.
Navigateur non pris en charge

Le navigateur Internet Explorer que vous utilisez actuellement ne permet pas d'afficher ce site web correctement.

Nous vous conseillons de télécharger et d'utiliser un navigateur plus récent et sûr tel que Google Chrome, Microsoft Edge, Mozilla Firefox, ou Safari (pour Mac) par exemple.
OK